Prà - Via Podestà : Locale carrabile
€ 175.000
Genova, zona Pra'
Dettagli
Contratto Vendita
Rif IMMO-110269103
Prezzo € 175.000
Provincia Genova
Comune Genova
Zona Pra'
Indirizzo Via Andrea Podestà">
Classe energetica
Non indicata
Condizioni abitabile
Consistenze
| Descrizione | Superficie | Sup. comm. |
|---|---|---|
| Principali | ||
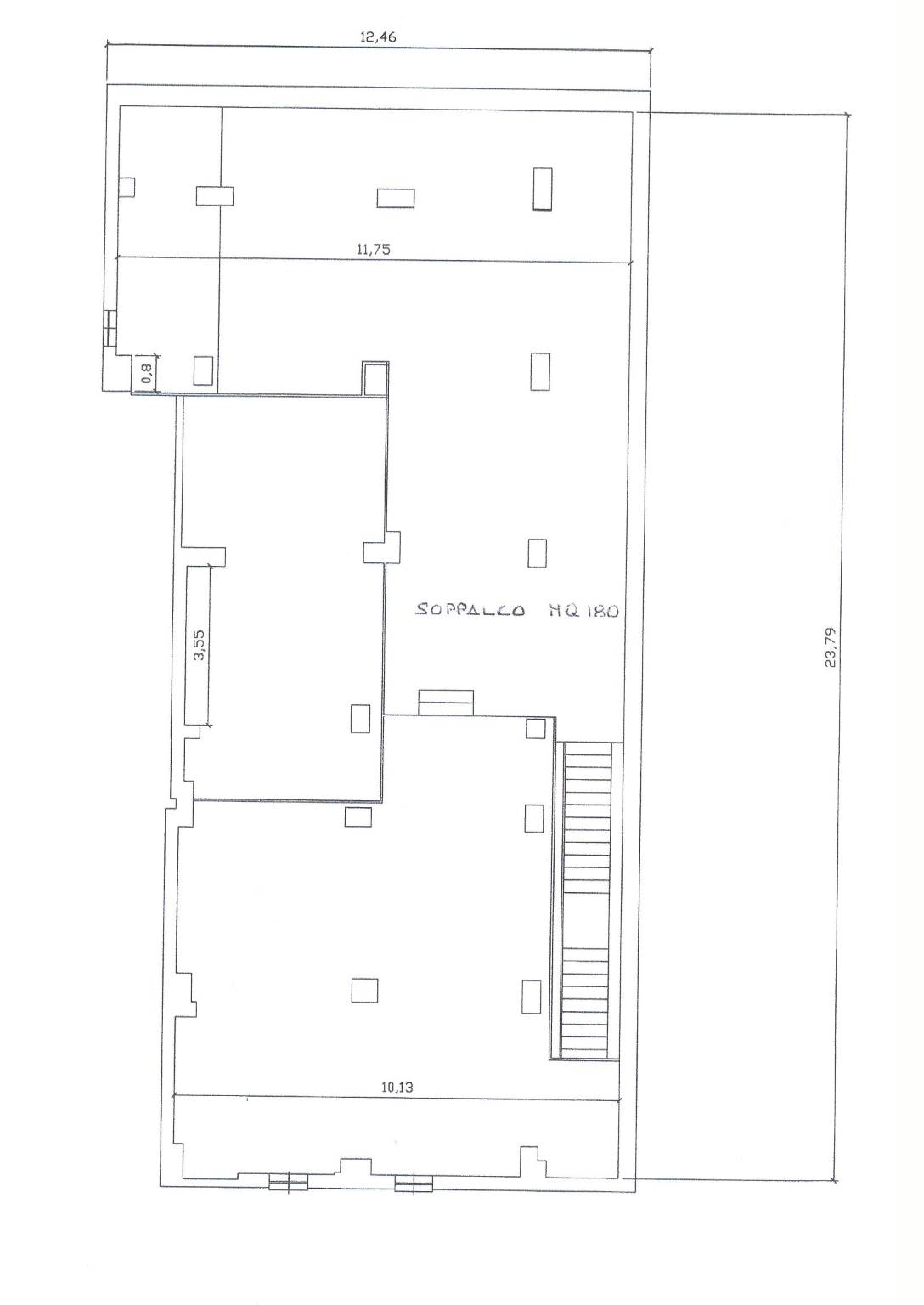
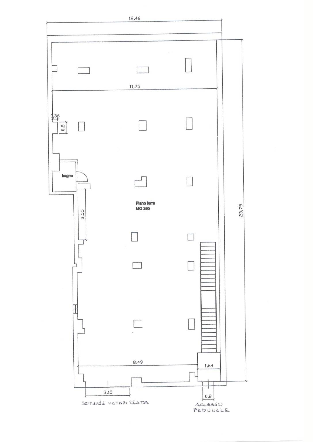
| Magazzino - piano terra | 250 Mq | 250 Mqc |
| Magazzino - 1° piano | 180 Mq | 180 Mqc |
| Totale | 430 Mqc | |
Prà - VIA Podestà : Locale composto da 2 piani,
il piano terra ha una superficie di circa 250 mq, è dotato di bagno con doccia, accesso carrabile con saracinesca motorizzata e un accesso pedonale.
Il piano Primo si distribuisce attraverso un soppalco costruito ad hoc, è collegato al piano terra attraverso una robusta scala larga circa m 1, la superficie del soppalco è di circa mq 180 ed è progettato per sostenere carichi di 250 kg /mq .
L'altezza complessiva del locale è di circa m 8,30.
Il soppalco è dotato di n° 2 finestre che sono esposte a sud + un'apertura sul cavedio.
Si valuta anche Locazione con garanzie Eu. 1.000/mese.
il piano terra ha una superficie di circa 250 mq, è dotato di bagno con doccia, accesso carrabile con saracinesca motorizzata e un accesso pedonale.
Il piano Primo si distribuisce attraverso un soppalco costruito ad hoc, è collegato al piano terra attraverso una robusta scala larga circa m 1, la superficie del soppalco è di circa mq 180 ed è progettato per sostenere carichi di 250 kg /mq .
L'altezza complessiva del locale è di circa m 8,30.
Il soppalco è dotato di n° 2 finestre che sono esposte a sud + un'apertura sul cavedio.
Si valuta anche Locazione con garanzie Eu. 1.000/mese.
Richiedi maggiori informazioni
Mappa
Zoom della mappa
Apri con:
Apple Maps
Google Maps
Waze
Contattaci
Lanza Immobiliare
Via Martiri della Liberta', 70 R 16156 GENOVA (GE)
Via Martiri della Liberta', 70 R 16156 GENOVA (GE)
P.IVA: 02359080997
+390106969740





