Casa indipendente a 10 minuti dal mare!
€ 105.000
Genova, zona Pegli
Dettagli
Contratto Vendita
Rif IMMO-122934622
Prezzo € 105.000
Provincia Genova
Comune Genova
Zona Pegli
Vani 5
Camere 4
Bagni 1
Classe energetica
G (DL 90/2013)
EPgl,nren 175 kwh/m2 anno
Riscaldamento inesistente
Condizioni da ristrutturare
Cucina abitabile
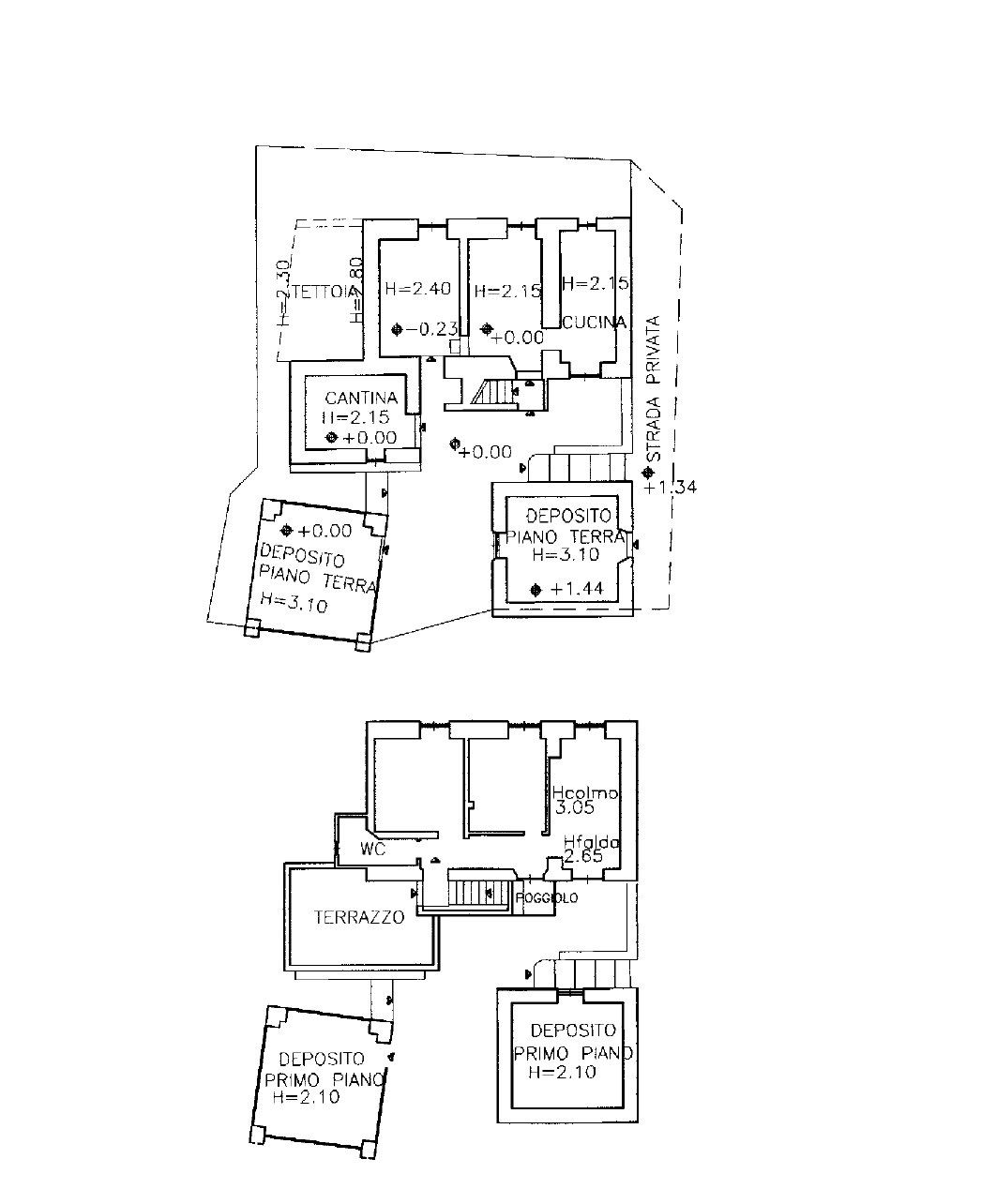
Consistenze
| Descrizione | Superficie | Sup. comm. |
|---|---|---|
| Principali | ||
| Immobile - piano terra | 60 Mq | 60 Mqc |
| Immobile - 1° piano | 60 Mq | 60 Mqc |
| Immobile - piano terra | 34 Mq | 34 Mqc |
| Totale | 154 Mqc | |
A 10 minuti dal mare rara opportunità casa indipendente in contesto privato, la casa si sviluppa su due piani attualmente si presenta da ristrutturare anche nelle parti comuni, fa parte della proprietà anche una casetta uso magazzino di cui è stato rifatto il tetto. Il punto forte sono il giardino che d'estate può essere un oasi di tranquillità come il terrazzo vivibile al primo piano. Contattaci per avere informazioni dettagliate! Seguici su Instagram per non perdere le novità @_lanza.immobiliare_
Richiedi maggiori informazioni
Contattaci
Lanza Immobiliare
Via Martiri della Liberta', 70 R 16156 GENOVA (GE)
Via Martiri della Liberta', 70 R 16156 GENOVA (GE)
P.IVA: 02359080997
+390106969740





